Our Services
Our services are structured to provide clarity at every stage of the design journey. While each project is unique, our process ensures that decisions are made with confidence and that the final design is well resolved before construction begins.
Initial Consultation & Brief Development
I begin by gaining an understanding on how you want to live, your priorities for the site, and your budget parameters. This early stage establishes a clear foundation for the design and ensures alignment before moving forward.
Stage 1


Design Development
The preferred concept is developed further, with attention given to materials, detailing, window placement, and overall cohesion. Cost and constructability are also considered throughout this stage.


Planning & Approval
Preparation and coordination of documentation required for Complying Development or Council approval. We manage this process with an understanding of regional planning frameworks in conjunction with Sate and Local authority requirements.


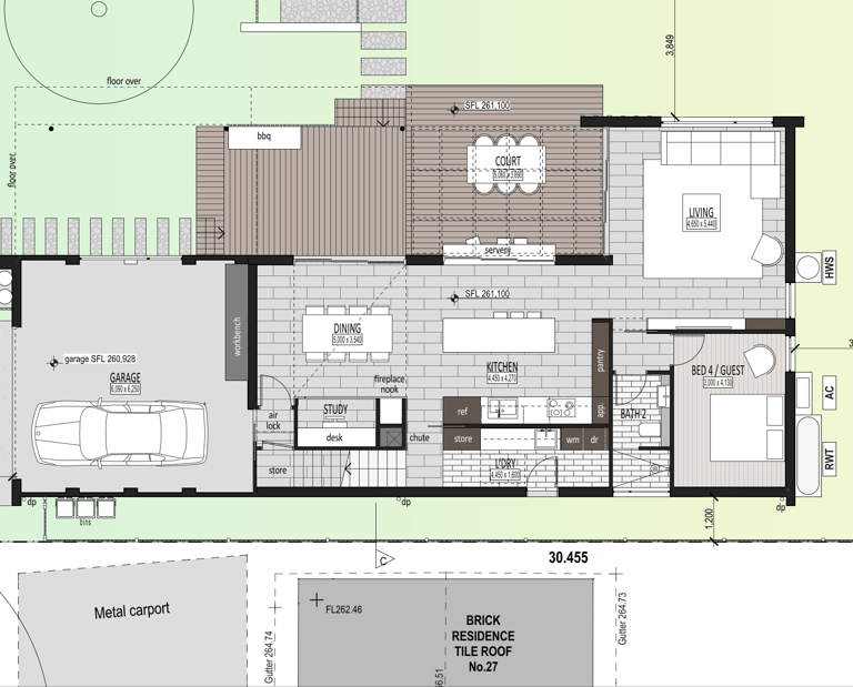
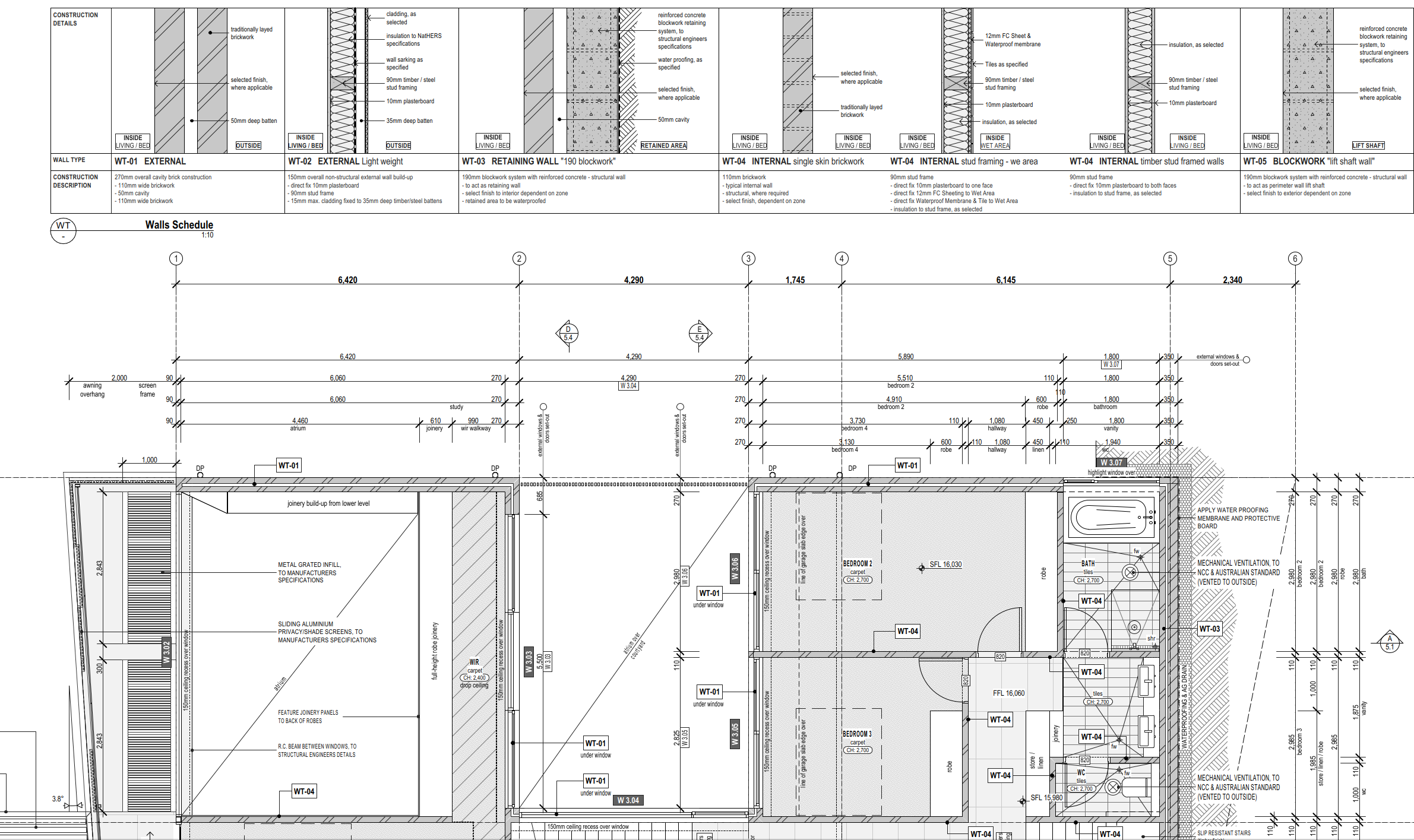
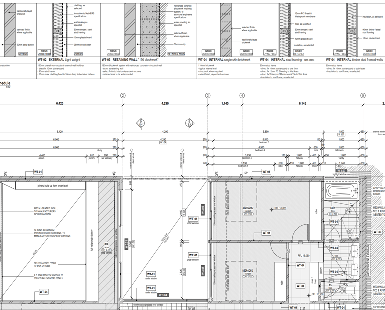
Construction Documentation
Production of detailed drawings suitable for builder pricing and construction. Clear documentation helps reduce ambiguity, support accurate quoting, and contribute to a smoother build process.
Stage 2
Stage 3
Stage 4
Quality Documentation
Led by Zoltan Lipovski, we craft custom homes with clarity, care, and regional insight.


"25+ years experience"
Working closely with builders to ensure buildability and quality.
Builder Collaboration
Phone
0410 605 614
© 2026. All rights reserved to Zoltan Lipovski Design.


Socials







